Prefabricación
Cada vez está más presente el proceso edificatorio apoyado en la prefabricción totla o parcila y la industralización.
Es un proceso en que se asegura la perfecta construcción de inmuebles en condiciones de control no existentes en una obra in situ.
Desaparece así la dependencia de aspectos climatológicos adveros que en situaciones convencionales podrían suponer retrasos y/o falta de calidad en la ejecución de algunas partidas.
Los niveles de exigencia normativa son alcanzados sin problemas dando mayores prestciones y niveles de cumplimiento que hacen de estos edificios modelos ideales para su posterior disfrute y mantenimiento.
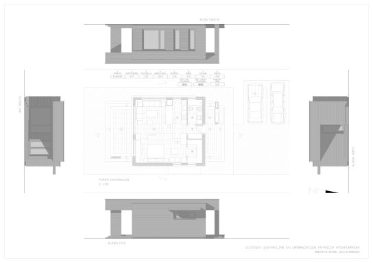
A continuación vemos agunos ejemplos diseñaqdos específicamente para la prefabricación donde loas medidas máximas de los diferentes módulos viene condicionadas fundamentalmente por el transporte de los mismos.


















